Structural Detailing Workflow

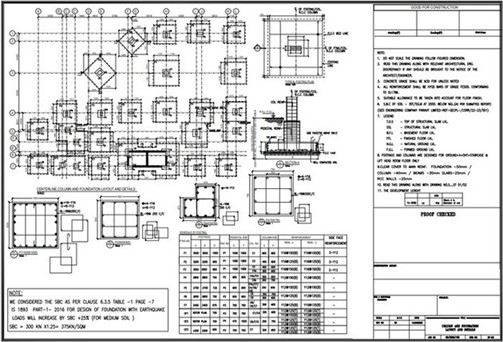
Step 1: Foundation Plan

Laying the structural footprint with footing details.

Footing Reinforcement Footing Reinforcement

Step 2: Footing Reinforcement Details

Defining bar layout, anchorage, and dimensions for footings.

Footing Reinforcement

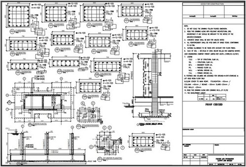
Step 3: Column Reinforcement Schedule

Mapping rebar sizes, laps, and development lengths for columns.

Footing Reinforcement Footing Reinforcement Footing Reinforcement

Step 4: Plinth Beam Layout & Detailing

Distributing loads at plinth level with precise bar placement.

Footing Reinforcement Footing Reinforcement

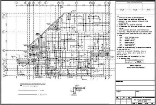
Step 5: First Floor Slab Layout

Positioning slabs, openings, and beam supports at floor level.

Footing Reinforcement

Step 6: Beam Reinforcement Detailing

Illustrating tension, compression, stirrups, and bar curvatures.

Footing Reinforcement Footing Reinforcement

Step 7: Slab Reinforcement Detailing

Reinforcement layout for one-way or two-way slabs, including bar spacing and crank lengths.

Footing Reinforcement

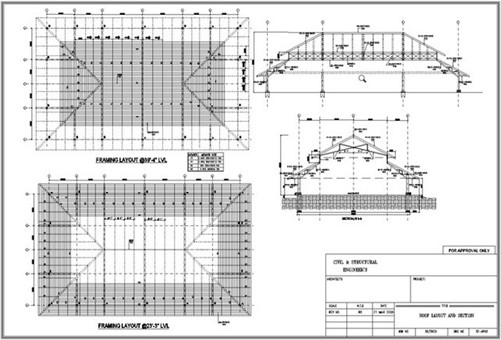
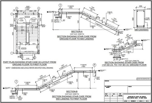
Step 8: Staircase / Swimming Pool / Compound Wall Detailing

Structural detailing of staircase, water tanks, swimming pools, and compound walls.

Footing Reinforcement

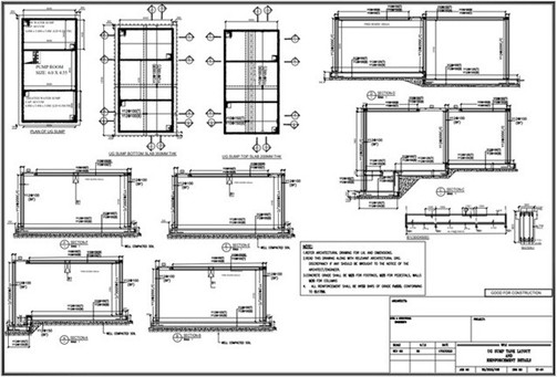
Step 9: Underground Water Tank Detailing

Structural detailing of base slab, side walls, roof slab

Footing Reinforcement

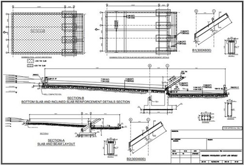
Step 10: Swimming Pool Reinforcement Detailing

Structural detailing of base slab, side walls, overflow drains

Footing Reinforcement

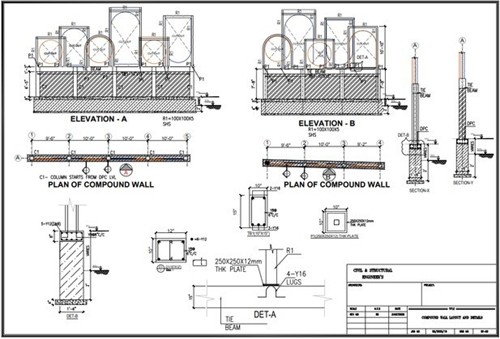
Step 11: Compound Wall Details

Footing Reinforcement

Step 12: Structural Steel Detailing

Footing Reinforcement